- Ti trovi in:
- Home ›
- Immobili ›
- Roma ›
- Vendita ›
- Appartamento ›
- Appartamento in vendita a Roma
Appartamento in vendita a Roma - Trastevere - via Garibaldi
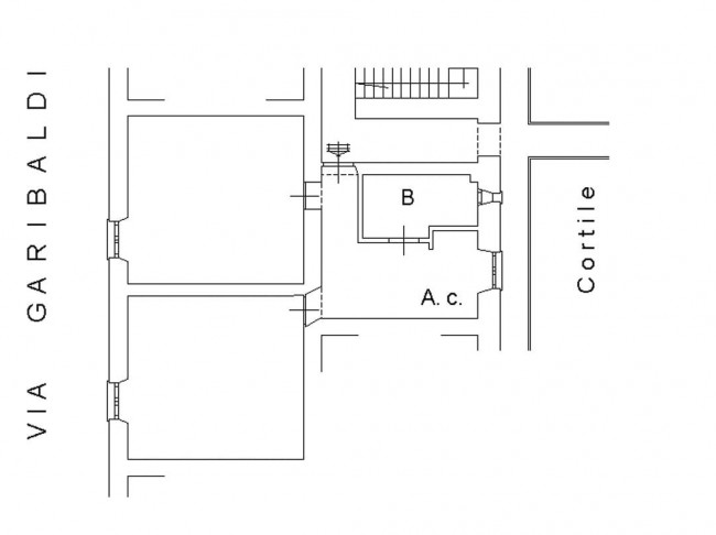
Vendita NUDA PROPRIETA' - TRASTEVERE. Precisamente in via Garibaldi, proponiamo in Vendita la nuda proprietà di due appartamenti (mq 75 + mq 65) situati al secondo piano di un prestigioso palazzo d'epoca con ascensore. Il palazzo, degli inizi del '900, originariamente un ex convento, si trova in una delle strade più rinomate e apprezzate del quartiere Trastevere; offre una doppia esposizione, che garantisce luminosità, con affaccio sul cortile interno e una vista affascinante su via Garibaldi.
Descrizione: si tratta di due appartamenti confinanti, catastalmente divisi ma uniti tra loro, composti ciascuno da due locali con cucina e bagno. Ogni Appartamento dispone di impianti di riscaldamento autonomi, con caldaia a gas.
L'immobile offre ottime possibilità di personalizzazione ed la soluzione ideale per chi desidera vivere in una zona centrale, ricca di servizi e locali, ma in un contesto tranquillo e silenzioso. Opportunità d'investimento unica: un immobile caratteristico, in una posizione prestigiosa e destinato a crescere di valore nel tempo.
Per informazioni: Tel. 06.77073740 - 3408233559 - info@diciottoimmobiliare.it (Diciotto Immobiliare)

P.IVA: 04877270969
info@diciottoimmobiliare.it
0283427138
3516542298
https://wa.me/3516542298
Lunghezza
Ostiense
Trastevere